Product Series
推薦產品
河南華東起重機械設備公司
服務熱線:400 086 9590
公司:河南華東起重機械設備有限公司
聯系人:賈經理
聯系電話:13903802779
地址:河南新鄉市封丘縣起重機工業園區
當前位置: 起重機 > 起重機文章
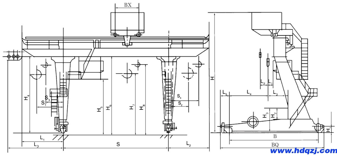
MDG型吊鉤門式起重機技術參數
時間:2024-05-27來源:起重機廠家瀏覽次數:1
單梁吊鉤門式起重機產品介紹:
MDG型單主梁吊鉤門式起重機由橋架,大車運行機構,小車,電氣設備等組成。小車在一根單主梁上運行,通過水平或垂直反滾輪,安全反鉤,保證其運行的安全可靠性。全部機械均在司機室內操作,靈活便捷。本機也可配用抓斗。
MDG型單梁吊鉤門式起重機適用于露天倉庫或鐵路沿線進行一般的裝卸和起重搬運工作。其工作環境溫度-20℃-+40℃。
單梁吊鉤門式起重機訂購說明:
采購門式起重機請告知以下數據,以便我們能更快確認您的需求!
1、起重量;
2、跨度(軌道中心至導軌中心);
3、起升高度(鉤中心接地);
4、是否需要外懸(請提供外懸長度);
5、需要導軌和電纜嗎?(請提供運行長度);
6、其他特殊要求如果您有更多的詳細資料,請告知,我們會更準確的給出價格!
單梁吊鉤門式起重機結構簡圖:

MDG型吊鉤門式起重機























