Product Series
推薦產品
河南華東起重機械設備公司
服務熱線:400 086 9590
公司:河南華東起重機械設備有限公司
聯系人:賈經理
聯系電話:13903802779
地址:河南新鄉市封丘縣起重機工業園區
當前位置: 起重機 > 起重機文章
QZ型雙梁抓斗橋式起重機技術參數
時間:2024-05-25來源:起重機廠家瀏覽次數:1
雙梁抓斗橋式起重機產品介紹:
雙梁抓斗橋式起重機應用:
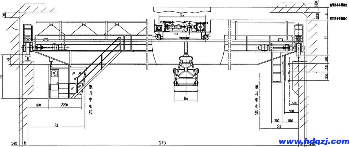
雙梁抓斗起重機結構簡圖:


QZ型雙梁抓斗橋式起重機參數表

上一篇:QE型雙梁橋式起重機技術參數
下一篇:YZ型橋式鑄造起重機技術參數
推薦文章:




















