Product Series
推薦產品
河南華東起重機械設備公司
服務熱線:400 086 9590
公司:河南華東起重機械設備有限公司
聯系人:賈經理
聯系電話:13903802779
地址:河南新鄉市封丘縣起重機工業園區
當前位置: 起重機 > 起重機文章
LDP型電動單梁起重機
時間:2024-05-24來源:起重機廠家瀏覽次數:1
LDP型電動單梁起重機產品介紹:
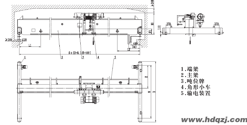
LDP型偏掛低凈空電動單梁起重機屬于超低凈空輕小型起重機,電動葫蘆位于主梁一側,增加了吊鉤的服務空間,可以降低廠房高度和造價。該產品因具有小車輪距大、運行平穩、結構緊湊、剛性好、操作靈敏、噪音低、安全可靠、造型美觀等優點,廣泛應用于工作環境溫度在-20℃~+40℃,車間廠房凈空高度又較低的場所。其額定載荷3t~10t,跨度7.5m~22.5m,工作級別A3、A4。
LDP型電動單梁起重機產品概述:
1、LDP型電動單梁起重機屬于超低凈空輕小型起重機,主梁通常采用箱型梁結構,電動葫蘆偏掛于主梁一側,增加了吊鉤的服務空間,可以降低廠房高度與造價。
2、LDP型電動單梁起重機具有小車輪距大、運行平穩、結構緊湊、剛性好、操作靈敏、噪音低、安全可靠、造型美觀等優點,廣泛用于工作環境溫度在-25-40℃,車間廠房凈空高度又較低的場所。
3、LDP型電動單梁起重機整機與CD、MD型電動葫蘆配套使用,其額定載荷3t-10t,跨度7.5m-22.5m,工作級別為A3、A4,起升高度6-12m,操作方式主要是地面操縱方式(地操、遙控操作、地+遙操作)。
4、LDP型電動單梁起重機通常采用錐形制動電機作為起升和運行使用,減速裝置采用齒輪減速傳動;整機設有起升、下降限位開關、大車行程開關,手柄按鈕、超載限制器等配套件。
5、LDP型電動單梁起重機廣泛用于工廠、倉庫、料場等不同場合吊運貨物,禁止在易燃、易爆、腐蝕性介質環境中使用。
6、公司可根據用戶需求進行非標設計。
LDP型電動單梁起重機結構簡圖:

























