Product Series
推薦產品
河南華東起重機械設備公司
服務熱線:400 086 9590
公司:河南華東起重機械設備有限公司
聯系人:賈經理
聯系電話:13903802779
地址:河南新鄉市封丘縣起重機工業園區
當前位置: 起重機 > 起重機文章
LDP偏掛單梁起重機、LDA電動單梁起重機
時間:2024-05-11來源:起重機廠家瀏覽次數:1
產品介紹
LDP型電動單梁起重機屬于超低凈空輕小型起重機,電動葫蘆位于主梁一側,增加了吊鉤的服務空間,可以降低廠房高度和造價。
LDP型電動單梁起重機是按GB/T3811-2008\JB/T1306-2008標準設計制造的,與CD1、MD1電動葫蘆配套使用的輕型起重設備。其額定載荷3t~10t,跨度7.5m~22.5m,工作級別A4,起升高度6~12m,操作方式主要是地面操縱方式(地操、遙控操作、地+遙操作)。如果有跨度和起升高度超出樣本中所列的范圍,我們還可以根據用戶需求進行非標設計。
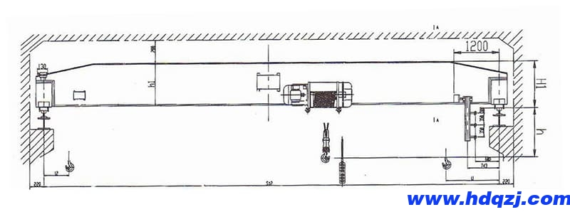
結構圖


LDA電動單梁起重機
產品介紹
LDA型電動單梁起重機是在“LD”的基礎上進行改進設計的,較“LD型”具有結構合理,整機剛性強的特點。整機與CD1型、MD1型電動葫蘆配套使用,是一種輕小型的起重機械。起重量為1t-10t??缍葹?.5-22.5m,工作級別為A3-A5。
適用場所
工作環境溫度為-25?+ 40℃范圍內,為一般用途起重機,多用于機械制造,裝配,倉庫等使用頻度低或額定起重量起吊次數少的場所。本產品廣泛用于工廠、倉庫、料場等不同場合吊運貨物,禁止在易燃、易爆腐蝕性介質環境中使用 .
性能特征
本產品設有地面和操縱室兩種操作形式,操縱室有開式、閉式兩種。可根據實際情況分為左或右面安裝兩種形式,入門方向有側面及端面兩種。以滿足客戶在各種不同需要的情況下進行選擇.





















