Product Series
推薦產品
河南華東起重機械設備公司
服務熱線:400 086 9590
公司:河南華東起重機械設備有限公司
聯系人:賈經理
聯系電話:13903802779
地址:河南新鄉市封丘縣起重機工業園區
當前位置: 起重機 > 起重機文章
QD型通用橋式起重機簡介
時間:2024-05-10來源:起重機廠家瀏覽次數:1
QD型通用橋式起重機(以下簡稱通用起重機)按照標準GB/T14405-93設計 制造,工作級別A3~A6,工作環境溫度在-25℃ ~ +40℃范圍內。
本產品為一般用途起重機,多用于機械制造、裝配、倉庫等場所,不適于在以下條件工作:
a、 有爆炸危險和火災危險的環境;
b、 相對濕度大于85%的場所和充滿腐蝕性氣體的環境;
c、 吊運熔化金屬,有毒物品和易燃易爆物品。
本起重機操縱形式為地面手柄+遙控器操縱。
本起重機機結構特點如下:
1、通用橋式起重機由大車和小車兩部分組成。小車上裝有起升機構和和小車運行機構,整個小車沿裝于主梁蓋板上的小車軌道運行;大車部分則是由起重機橋架等組成。在大車橋架上裝有大車運行機構和小車輸電裝置。
2、起重機的金屬結構由橋架、小車架組成,是起重機的承載結構。橋架由主梁、端梁、走臺和防護欄等組成,主梁和端梁均由鋼板拼焊成箱形斷面結構,具有足夠的強度、剛度和穩定性,確保起重機安全運轉。
3、起重機機構傳動機構由起升機構、小車運行機構和大車運行機構等
三部分組成。
4、電氣傳動部分由電氣設備和電氣線路所組成。電氣設備包括各機構
電動機、制動器驅動裝置、電氣控制裝置及電氣保護裝置等組成;電氣線路
由主回路、控制回路和警示信號回路所組成。
5、 本產品表示方法如下:
本機起重量:10t;跨度:22.50m;工作級別:A6 ;
操控方式:地控+遙控(D+Y)
表示方法:QD10-22.50 A6 D+Y GB/G14405-93
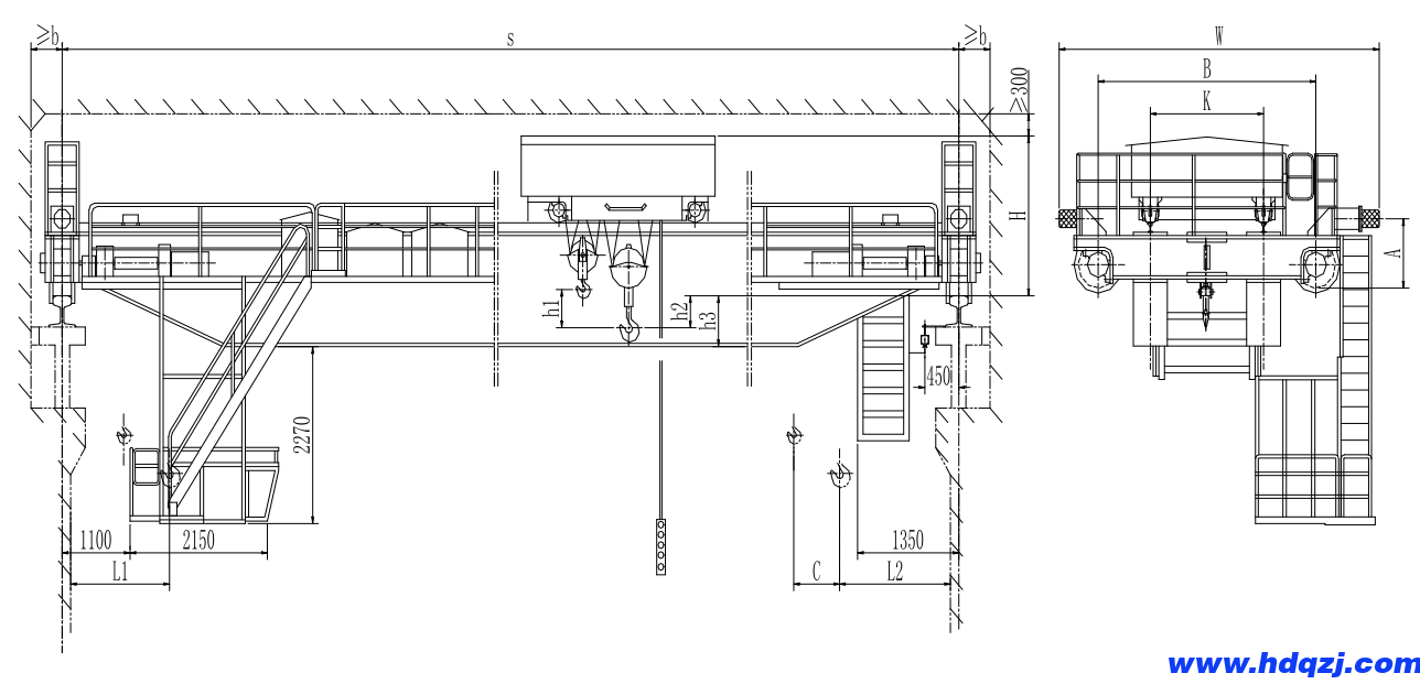
QD型通用橋式起重機主要尺寸圖紙:

QD型通用橋式起重機起重機主要技術參數表:
| 起重量Cap(t) | 5 | 10 | |||||||||||||||
| 最大起升高度(m) | 16 | ||||||||||||||||
| Max.LiftingHeight | |||||||||||||||||
| 跨度Span(m) | 10.5 | 13.5 | 16.5 | 19.5 | 22.5 | 25.5 | 28.5 | 31.5 | 10.5 | 13.5 | 16.5 | 19.5 | 22.5 | 25.5 | 28.5 | 31.5 | |
| 起升速度(m/min) HoistingSpeed | A5 | 11.3 | 8.6 | ||||||||||||||
| A6 | 15.6 | 13.2 | |||||||||||||||
| 小車運行速度(m/min) Travelling | 37.2 | 37 | |||||||||||||||
| 起重機運行速度(m/min) Travelling | A5 | 操作室控制:70地面控制:40 | |||||||||||||||
| A6 | 操作室控制:90地面控制:40 | ||||||||||||||||
| 操縱方式Worktype | 地面操縱操縱室操縱遙控 | ||||||||||||||||
| 電源PowetSupply | 3AC380V50HZ | ||||||||||||||||
| 裝機容量(KW) | A5 | 19.9 | 24.6 | 28.2 | |||||||||||||
| Chiefvolume | A6 | 27.5 | 43.2 | 47.2 | |||||||||||||
| 薦用軌道CraneRail | P24 | P24,P38 | |||||||||||||||
| 主要尺寸(mm)MainDimension | b | 310 | 310 | ||||||||||||||
| H | 1760 | 1780 | |||||||||||||||
| K | 1400 | 2000 | |||||||||||||||
| W | 3400 | 4100 | 4100 | 4600 | |||||||||||||
| B | 4824 | 5524 | 5524 | 6024 | |||||||||||||
| A | 700 | ||||||||||||||||
| h2 | 96 | 94 | 323 | 321 | |||||||||||||
| h3 | 76 | 176 | 246 | 326 | 476 | 676 | 776 | 926 | 76 | 176 | 246 | 326 | 476 | 676 | 776 | 926 | |
| L1 | 860 | 1090 | |||||||||||||||
| L2 | 1420 | 1500 | |||||||||||||||
| 起重量Cap(t) | 16/3.2 | 20/5 | ||||||||||||||||
| 最大起升高度(m) Max.LiftingHeight | 主鉤 | 16 | 12 | |||||||||||||||
| 副鉤 | 18 | 14 | ||||||||||||||||
| 跨度Span(m) | 10.5 | 13.5 | 16.5 | 19.5 | 22.5 | 25.5 | 28.5 | 31.5 | 10.5 | 13.5 | 16.5 | 19.5 | 22.5 | 25.5 | 28.5 | 31.5 | ||
| 起升速度 HoistingSpeed (m/min) | A5 | 主鉤 | 7.9 | 7.2 | ||||||||||||||
| 副鉤 | 15.4 | 12.6 | ||||||||||||||||
| A6 | 主鉤 | 13 | 12.4 | |||||||||||||||
| 副鉤 | 15.4 | 12.6 | ||||||||||||||||
| 小車運行速度(m/min) | 37 | 30 | ||||||||||||||||
| Travelling | ||||||||||||||||||
| 起重機運行速度(m/min) | A5 | 操作室控制:80地面控制:40 | 操作室控制:78地面控制:40 | |||||||||||||||
| Travelling | A6 | 操作室控制:90地面控制:40 | ||||||||||||||||
| 操縱方式Worktype | 地面操縱操縱室操縱遙控 | |||||||||||||||||
| 電源PowetSupply | 3AC380V50HZ | |||||||||||||||||
| 裝機容量(KW) | A5 | 47.7 | 51.7 | 47.7 | 74.7 | |||||||||||||
| Chiefvolume | A6 | 66.7 | 73.7 | 66.7 | 81.7 | |||||||||||||
| 薦用軌道CraneRail | P24,P38 | P24,P38 | ||||||||||||||||
| 主要尺寸(mm) | b | 350 | 350 | |||||||||||||||
| H | 2100 | 2100 | ||||||||||||||||
| K | 2000 | 2000 | ||||||||||||||||
| W | 4100 | 4400 | 4100 | 4400 | ||||||||||||||
| B | 6040 | 6340 | 6040 | 6340 | ||||||||||||||
| A | 815 | 915 | 815 | 915 | ||||||||||||||
| h1 | 808 | 967 | ||||||||||||||||
| h2 | 699 | 599 | 699 | 599 | ||||||||||||||
| h3 | 82 | 86 | 184 | 232 | 380 | 530 | 680 | 830 | 82 | 86 | 184 | 232 | 380 | 530 | 680 | 830 | ||
| L1 | 1960 | 2003 | ||||||||||||||||
| L2 | 1630 | 1581 | ||||||||||||||||
| C | 572 | 836 | ||||||||||||||||
| 起重量Cap(t) | 32/5 | 50/10 | ||||||||||||||||
| 最大起升高度(m) | 主鉤 | 16 | 12 | |||||||||||||||
| Max.LiftingHeight | 副鉤 | 18 | 14 | |||||||||||||||
| 跨度Span(m) | 10.5 | 13.5 | 16.5 | 19.5 | 22.5 | 25.5 | 28.5 | 31.5 | 10.5 | 13.5 | 16.5 | 19.5 | 22.5 | 25.5 | 28.5 | 31.5 | ||
| 起升速度 HoistingSpeed (m/min) | A5 | 主鉤 | 6.2 | 5.3 | ||||||||||||||
| 副鉤 | 12.6 | 13.2 | ||||||||||||||||
| A6 | 主鉤 | 9.5 | 6.9 | |||||||||||||||
| 副鉤 | 19.5 | 13.2 | ||||||||||||||||
| 小車運行速度(m/min) | 31 | 30 | ||||||||||||||||
| Travelling | ||||||||||||||||||
| 起重機運行速度(m/min) | A5 | 操作室控制:60地面控制:40 | ||||||||||||||||
| Travelling | A6 | 操作室控制:75地面控制:40 | ||||||||||||||||
| 操縱方式Worktype | 地面操縱操縱室操縱遙控 | |||||||||||||||||
| 電源PowetSupply | 3AC380V50HZ | |||||||||||||||||
| 裝機容量(KW) | A5 | 64.5 | 68.5 | 89.5 | 96.5 | |||||||||||||
| Chiefvolume | A6 | 90.5 | 97.5 | 106.5 | 114.5 | |||||||||||||
| 薦用軌道CraneRail | P38,P43 | P43,P50 | ||||||||||||||||
| 主要尺寸(mm) | b | 350 | 400 | 400 | ||||||||||||||
| H | 2339 | 2439 | 2469 | 2650 | ||||||||||||||
| K | 2500 | 2500 | ||||||||||||||||
| W | 4650 | 4700 | 5000 | 4800 | 5000 | |||||||||||||
| B | 6474 | 6620 | 6924 | 6742 | 6924 | |||||||||||||
| A | 940 | 1040 | 1070 | 1090 | ||||||||||||||
| h1 | 790 | 1030 | ||||||||||||||||
| h2 | 701 | 601 | 571 | 1234 | 1228 | |||||||||||||
| h3 | 90 | 94 | 244 | 294 | 444 | 564 | 714 | 814 | -82 | 98 | 104 | 254 | 404 | 554 | 704 | 804 | ||
| L1 | 2050 | 2171 | ||||||||||||||||
| L2 | 1700 | 2000 | ||||||||||||||||
| C | 980 | 1071 | ||||||||||||||||




















