Product Series
推薦產品
河南華東起重機械設備公司
服務熱線:400 086 9590
公司:河南華東起重機械設備有限公司
聯系人:賈經理
聯系電話:13903802779
地址:河南新鄉市封丘縣起重機工業園區
當前位置: 起重機 > 起重機文章
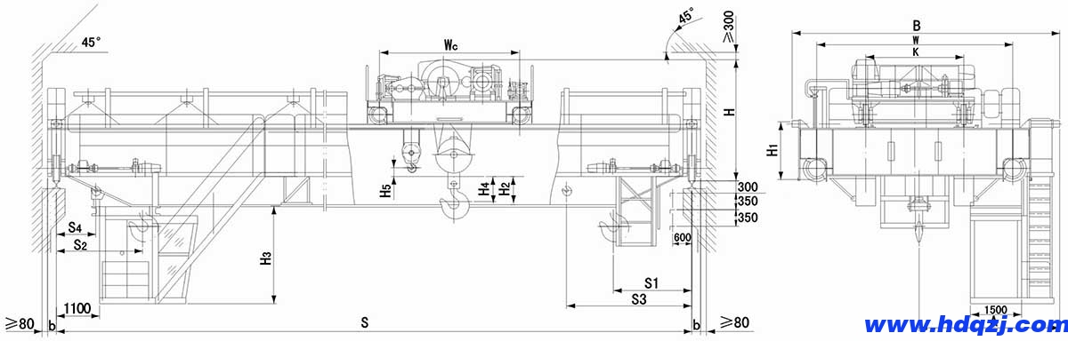
QD型5~50/20t吊鉤橋式起重機
時間:2024-05-09來源:起重機廠家瀏覽次數:1
QD型5~50/20t吊鉤橋式起重機
本系列起重機適用于工礦企業車間、倉庫以及鐵路、港口等貨物固定跨間物料的裝卸和搬運。
主要特點:
1、整體由橋架、小車、運行機構、電控設備組成。
2、按起重機的利用等級和載荷狀態,起重機工作級別分為A5和A6級。
3、橋架采用箱形中軌梁焊接結構。
4、零部件標準化、系列化、通用化。
5、小車導電方式為電纜導電和角鐵導電方式兩種。
6、起升制動器采用YWZe型,運行制動器采用YWZe型。
7、操縱室分為開式和閉式兩種,內設直立式控制器或聯動臺,操縱靈活,工作舒適(可根據用戶需要配風扇、空調機、電子稱等)。
8、露天使用的起重機配有防雨罩。
QD型5~50/20t吊鉤橋式起重機方案圖




推薦文章:




















