Product Series
推薦產品
河南華東起重機械設備公司
服務熱線:400 086 9590
公司:河南華東起重機械設備有限公司
聯系人:賈經理
聯系電話:13903802779
地址:河南新鄉市封丘縣起重機工業園區
當前位置: 起重機 > 起重機文章
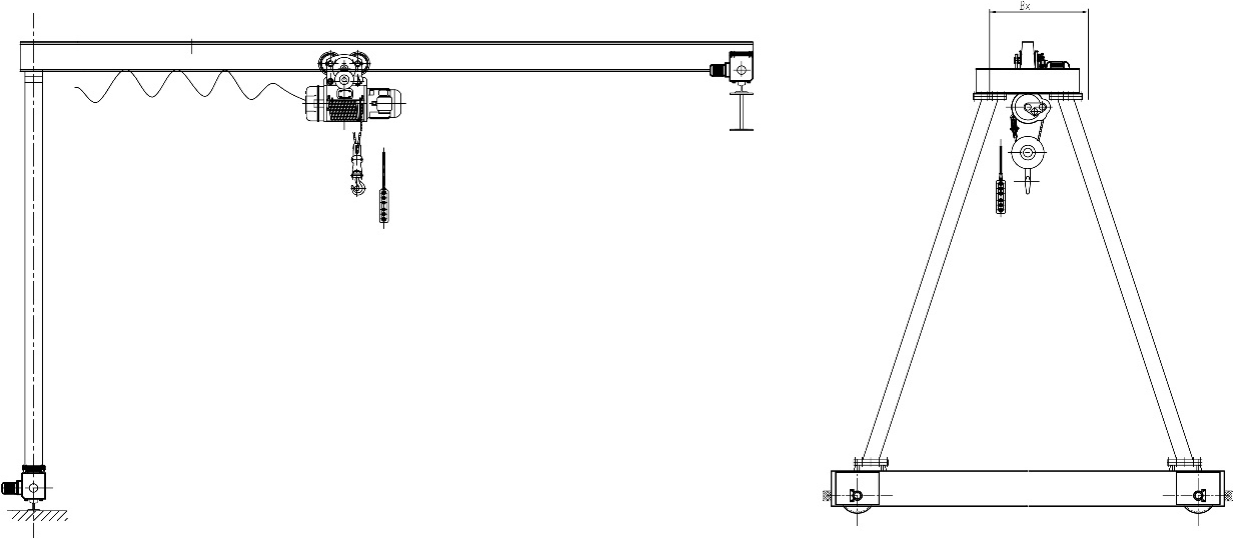
BMH型電動葫蘆半門式起重機行車
時間:2024-04-22來源:起重機廠家瀏覽次數:1
BMH型電動葫蘆半門式起重機產品特點:

BMH型電動葫蘆半門式起重機是介于橋式起重機與龍門起重機之間的一種起重機,半龍門式起重機只有一條支腿,起重機另一端像橋式起重機一樣架在廠房的承重梁上,其起升機構、小車運行機構和橋架結構,與橋起重機基本相同,額定起重量通常在12.5噸以下。
? 主梁優化設計,輪壓小、自重輕
? 起重機端梁采用抗扭箱式結構
? 表面油漆,兩底兩面,壽命長,外表美觀,光澤好
? 主梁與端梁的連接符合機械制公差,使磨損度降為較小
? 起升機構結構緊湊,使吊鉤行程更為合理,工作范圍更為廣泛
? 安全滑觸線供電,配置缺相保護功能
? 使用高度柔韌的扁平電纜向小車供電,并具接地保護功能
? 手電門可與小車相連,也可單獨在主梁上自由移動
? 大小車采用三合一驅動機構,變頻無級調速,啟制動平穩
BMH型電動葫蘆半門式起重機結構圖紙:





















